详细信息
当前位置:
首页
| 详细信息
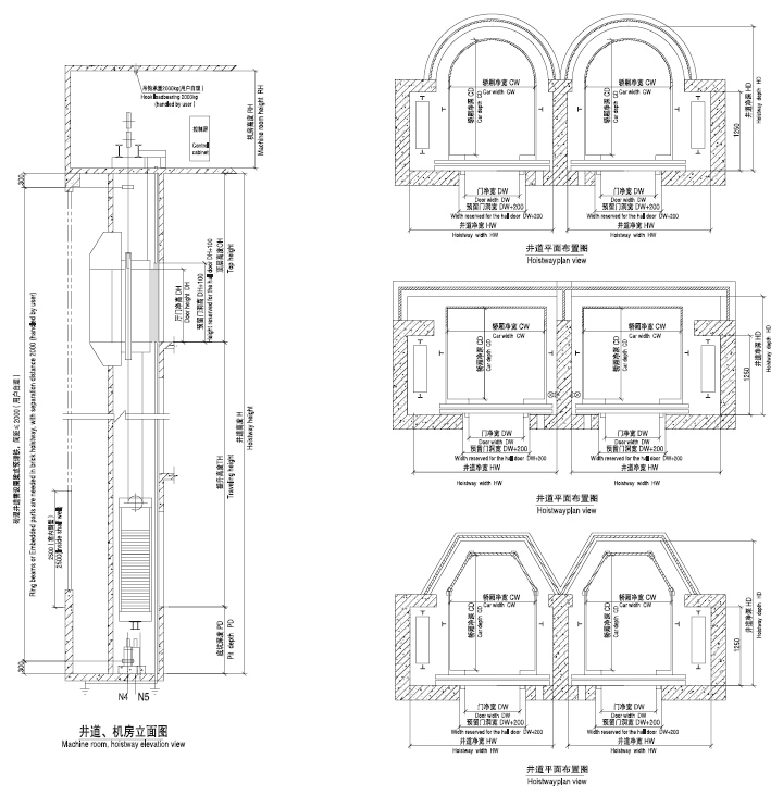
观光梯土建示意图
信息来源:
通宇电梯
发布日期:
2016-04-21
产品中心
小机房乘客电梯
无机房乘客电梯
家用电梯
观光电梯
医用电梯
载货电梯
杂物电梯
自动扶梯
自动人行道
版权所有:宁夏通宇电梯制造发展股份有限公司 地址:银川市经济技术开发区西区光明路与文萃路交叉处
电话:0951-5096330 5096350 传真:0951-6088970 热线:400-152-6677
网站备案号:
宁ICP备2023001614号-1
技术支持:
羽之科网络